是IST在Einer Technischen ZeichnungFür死于CNC-BALLBEITUNG ENTALALTIN吗?

FortgesChrittene CNC-BearbeitungsgerüsteKönnenieGeometrieeineTeils Direkt Aus DEM 3D-CAD-Datensatzentschlüsseln。Spezielle Zeichnungen Sind Nicht Unbedingt Erforderlich,Um Ein Zitat Zu erfragen,Aber Sie Sind infer NochAußerordentlich·德国在GroßemuufangVerwendet,Da Sie Die Kommunikation Spezieller Voraussetzungen Zwischen Dem Desimer / Ingenieur und Dem Ingenieur Vorantreiben。

Warum Sind Technische Zeichnungen Immer Noch Wichtig?

ISISTICHICHICHICHINNENT AUFZUNEHMEN,WENNEHMEN,WENGEHRE 3D-CAD-SEPARION of-spearation folgendes Umfasst:

1. Gewinde(Innen OderAußen)

Merkmale Mit Belastbarkeit,Die DenStandardÜbertrefen

3.indioDuelleOberflächenMitBesonderenWickelvoraussetzungen(OberflächenunangenehmkeitUSW.)

DieseVoraussetzungenKönnen在Einer 3D-CAD-Datei Nicht Weitergegeben Werden。Selbst Wenn EsNichtMöglichIst​​,Dass Ihr Plan Das over NichtEnthält,Ist ​​ZumGrößtenTeilEineGute Sache,Wenn Sie Beim Einstellen Einer CNC-Anordnung Mit Ihrem 3D-CAD-Datensatz Eine Zeichnung Estheren。Irmenterweise Wird der 3D-CAD-Datensatz Zum Programmeren der CNC-Maschine Verwendet,und Die Zeichnung Wird AlsRegletzfürdengesamtenBescbeitungsgriff Verwendet。DIE MEISTEN CNC-ZULIEFERERKönnenTeileAuch Speziell Aus Einer Speziellen ZeichnungHäufigGegenüber3D-Cad-AufzeichNungen,Weil:

1.SIND BEREIT,DIE GEOMETRIE EINES TEILS AUS DER 2D-ZEICHNUNG SCHNELLZUÜBERSETZEN

2. es ist weniger anspruchsvoll,Die MeistenMaße,Kapazitätenund Grundlegenden亮点Eines Teils Zu Erkennen。

3. ES IST Einfacher,Den Abruf der Hersellung des TeilsZuÜberwachen。

Bei der Planung EinerSpezialzeichnungFürIeCNC-BeshiTungMüssenEinigeBasondere亮点BerücksichtigtWerden。

柴油Schließenein:

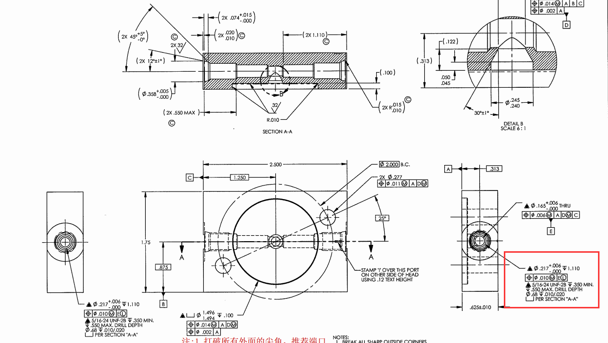
1。 ToleranzenFürstimmteZonen:Die CNC-Beshbeitung IstÜberhauptNichtMitAnderen Fertigungsformen Vergleichbar,Da Einige Wenige Maschinenapparate Zum Bessiten Eineseeinzelnen Abschnitts VerwendetWerdenKönnen。Zur Veranschaulichung Kann Die Bearbeitung Mit Dem Schruppen Beginnen,Das Vor Kurzem Nach DemFräsenFürBesondersKernige亮点AusgeFührtWURDE。AUS Diesem GrundKönnenGerenieureMöglicherweiseunterschiedlichewiderständefürstimmtebereichedes abschnitts anshchnitts anshgnnitts anbagnnitts anshgnnits anshbnitts anshingben,Wibei die grundbereiche mit Besseren Schneidwerkzeugen Schrittweise Bearbeitet Werden。

2。 Lochbeschriveungen:Lücken,Die Hervorhebungen Wie Senker Enthalten,SindGängigeCNC-Bearbeitungshighls undWerdenhäufig在Detavyansichten inderschieden。

3。 Gewindebestimmungen:Da Zeichenfolgen inStandardgrögen赫斯特勒斯(StatuströßenHergetelltWerden),Empfiehlt Es Sich,Jeder Zeichenfolge Anstelle derMaße在Millimetern DaspendeePrechendeZuichenfolgenmaßZuzuweisen。

4. Hinterlassen Sie Detaillierte Notizen

TechnischeHinweiseKönnenunglaublichHilfreichSein,Um Sicherzustelen,Dass Ein Teil Genau Wie Beabsichtigt Hergestellt Wird。DiesKönnen详情ZurOberflächenbeschaffenheit,Zum Entgraten / Reinigen,ZuSekundärprozessen,Zu MaterialZertifizierungen und Mehr Sein。Alle Sonstigen Anforderungen,Die Anein Fistiges Teil Erwartet Werden,KönnenundSolltenBerücksichtigtWerden。Dies Wird Dazu Beitraagen,DieQuitätdderHersellungZu Verbesstern und Sicherzustellen,Dass All Parteien Mit Dem EndProdukt Zufrieden Sind。


188bet体育官网体值得硬件IST eine CNC-Fertigung und Blechbearbeitung,EinschließlichCNC-Beshiteung,CNC-Fräsen,CNC-Drehen,Laserschneiden und Stanzen。rufen sie uns anti + 86-76989919645 oder senden sie hone eine电子邮件a[电子邮件受保护]Fürmehrrabattefürihreprojekte。

//]]>